The Bay offers chalet-inspired living with cathedral ceilings and a bright, open floor plan. Warmth and character are added by shiplap and tongue-and-groove ceilings. Built on a permanent foundation to local building code, this quality-crafted home balances style, function, and efficiency for modern living with classic appeal.


Discover The Pioneer, a charming 1,700-square-foot single-family farmhouse home designed for modern living. This stunning ranch features 3 bedrooms, 2.5 baths, a 2-car garage, and an open floor plan, welcoming front porch. Best of all, The Pioneer design can be customized with color options to perfectly match your vision, offering you the ideal balance of classic style and personalized modern flair. Built to local building and energy codes.
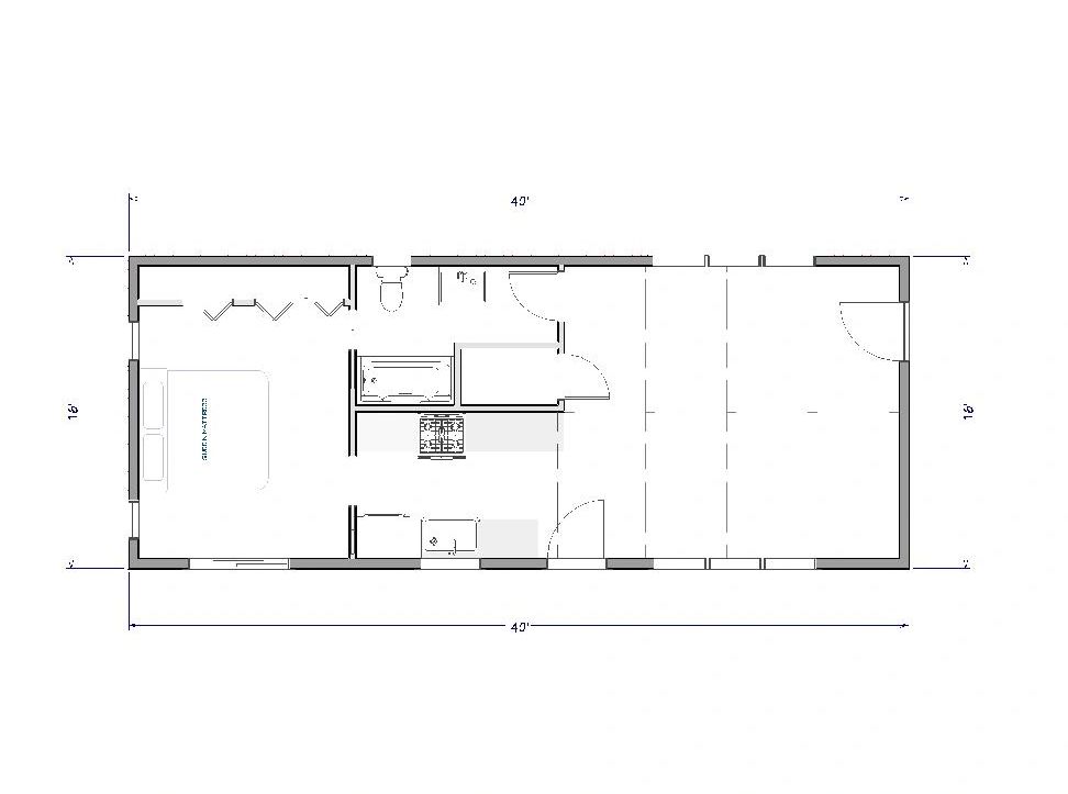
This is a Single Prefab Unit starting at 560 Square Ft. It is a unique floor plan with 1 bedroom and 1 bathroom. This unit is a great starter house with all of our custom Amish interior craftsmanship.
It includes our beautiful milled in house shiplap tongue and groove wall and ceiling coverings.



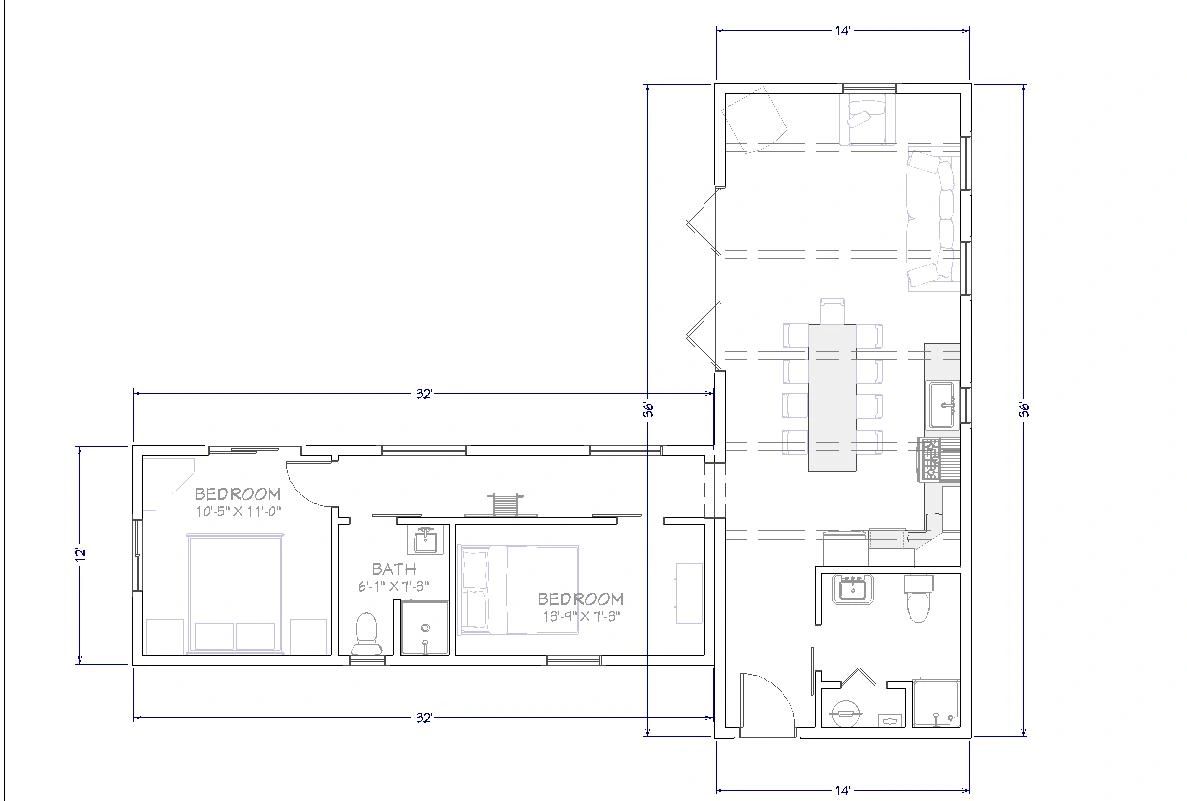
This is a Double Prefab unit that starts at 900 square feet. This home comes with our custom Amish craftsmanship, rustic beams and beautiful woodworking.
This beautiful open floor plan includes a living room, dining, kitchen area and a full bathroom.
The connecting unit has a spacious master bedroom with a sliding patio door or french door that goes to the porch. It also includes a second guest bedroom and full bathroom.
The kitchen has a large custom island that also serves as a dining area that seats 8-10 people. All the cabinets are custom from our Amish woodshop.




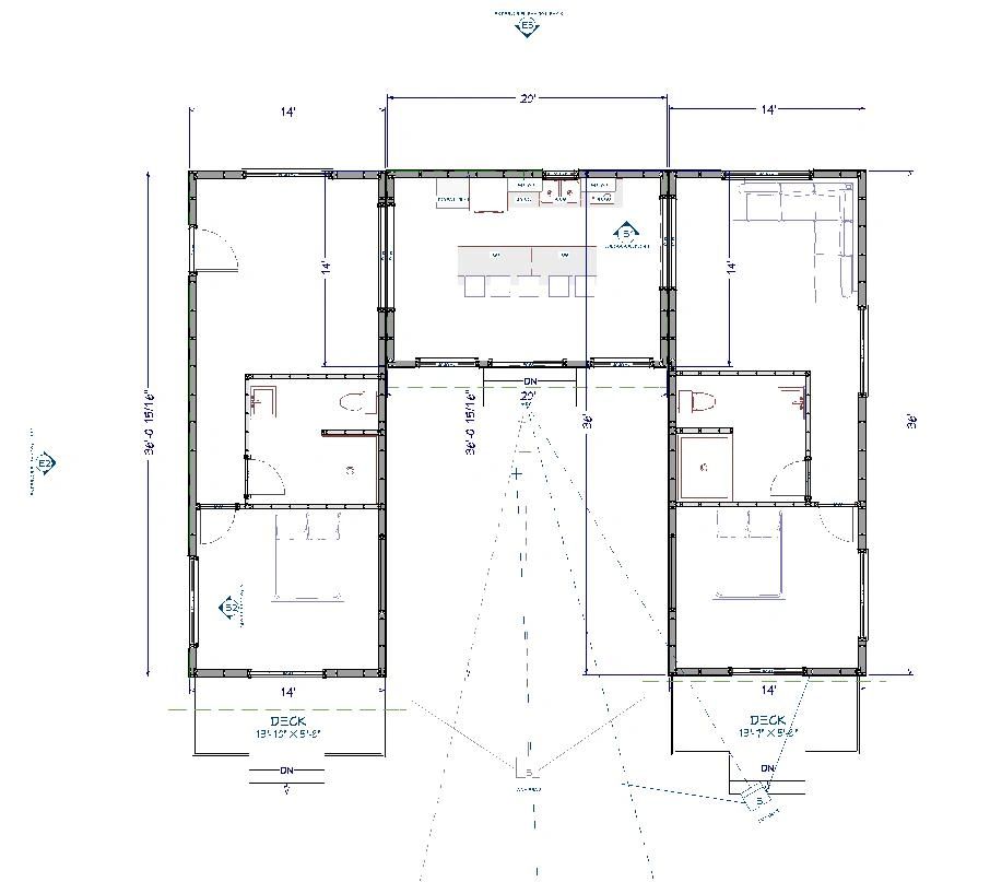
This is a Triple Unit that starts at 1,200 square feet.
This U shaped home creates a beautiful courtyard. This is a 2 bedroom, 2 Bathroom with an open floor space. Each has a large bedroom with a full bathroom. Each bedroom has beautiful custom French doors opening to a spacious porch.
The middle unit that connects the two has a full custom kitchen with an island. This kitchen has French doors that open to a courtyard.
This home comes with our custom Amish craftsmanship and beautiful woodworking.



Are you a craftsperson that just wants the pre-fab tiny house shell? We can help with that.560 Square Ft. to 1,200 square ft. We can speed up your tiny home project.



Copyright © 2026 Innovative Tiny Houses - All Rights Reserved.
We use cookies to analyze website traffic and optimize your website experience. By accepting our use of cookies, your data will be aggregated with all other user data.